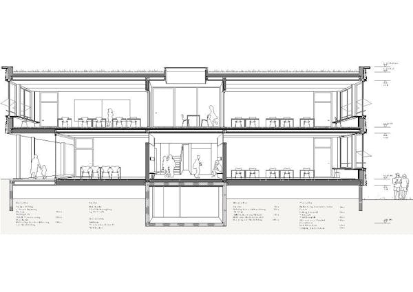
Erweiterung Schulanlage Staufen
- Catégorie: Wettbewerbe
- Rang: Studienauftrag
- Client: Gemeinde Staufen
- Staufen | 2023
Wettbewerb im selektiver Verfahren für die Erweiterung der Schulanlage Staufen, Argovien.
In Zusammenarbeit mit Schwab Architecte. Landschaft: Kesküla Erard architecture du paysage. Render: Acalitz visuals. Modell: wolczek architektur-modellbau Biel




