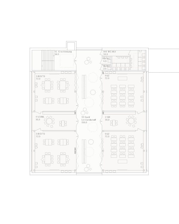
Erweiterung Schulanlage Hinterbüel
- Catégorie: Wettbewerbe
- Client: Bauamt Wangen bei Olten
- Wangen bei Olten | 2022/ 2. Rundgang
Wettbewerb Erweiterung Schulanlage Hinterbüel, Wangen bei Olten. Landschaft: Kesküla Erard architecture du paysage. Render: ONIRISM



