Erweiterung Schulzentrum Schöntal
- Kategorie: Wettbewerbe
- Rang: Projekt Finalist
- Kunde: Bauamt Altstätten
- Altstätten | 2022
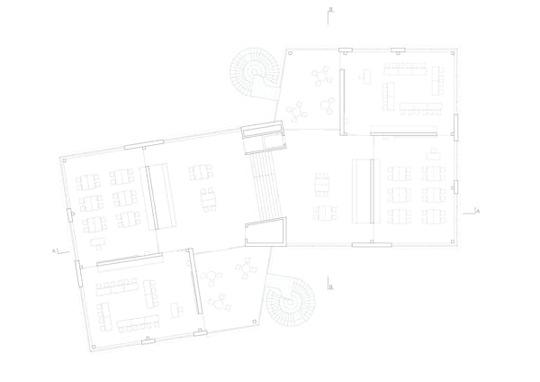
Projektwettbewerb im offenen Verfahren. Erweiterung der bestehenden Grundschule und Einrichtung eines Kindergartens und einer Tageschule.
Landschaftarchitekt: Kesküla Erard architecture du paysage. Render: A. Calitz Visuals. Modellbauer: Wolczek Architekturmodellbau



